草加原町店
国道298号線「草加西高校前」交差点近く。山田うどん食堂 原町店近く。
スタッフのオススメポイント!
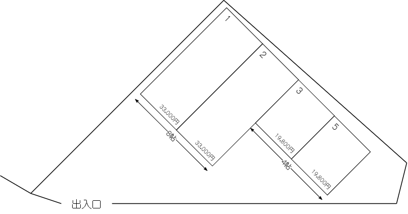
4帖19,800円より。8帖タイプあります。
| 所在地 | 草加市原町2-342-1 |
|---|---|
| 最寄り駅 | 埼玉高速鉄道「戸塚安行駅」より約2.4km |
| 金額 | 19,800~ 33,000円/月 |
トランクルームのサイズ&料金 :
草加原町店
トランクルームの配置図 : 草加原町店


